Ikea Tiny Home Floor Plan : Ikea Tiny House Design — Ideas Roni Young from "The ... / Foot condo for further expansion possibilities the square foot home now living small bedroom for two living area which the first home plans alton ociated designs.

Ikea Tiny Home Floor Plan : Ikea Tiny House Design — Ideas Roni Young from "The ... / Foot condo for further expansion possibilities the square foot home now living small bedroom for two living area which the first home plans alton ociated designs.. Vox creative has instead helped pivot the project into a fully digital campaign with a virtual walkthrough of the tiny home. Escape is currently accepting orders for. Ikea and escape join forces to build sustainable tiny house. Packing and unpacking is a big part of life on the road. Now ikea is getting on board by designing and decorating a tiny house through the ikea tiny home project.

With the ikea home planner you can plan and design your: Ikea planning tools are here for your interior home and room design, plan for your living room, bedroom, work space, kitchen area and more with ikea with options that can go on the floor or the walls, the kallax storage furniture series has a lot to offer you. The clean, simple design, and the big. Escape is currently accepting orders for. *please note, the ikea home planner is not compatible with remote kitchen planning can help keep your kitchen project moving forward from the comfort of your home.

PHOTOS: See Inside IKEA Brooklyn's Tiny 391 Sq. Ft. Model ...
PHOTOS: See Inside IKEA Brooklyn's Tiny 391 Sq. Ft. Model ... from inhabitat.com
How long have we all waited for a tiny house from ikea? The clean, simple design, and the big. Ikea small house plan 621 square feet. A small door leads from the kitchen to the bathroom. While walking through an ikea home furnishings store last week i saw a bunch of neat model homes that took up very little space. Visit business insider's homepage for more stories. Click on download button above to download the installer. A new home at every stop.

While walking through an ikea home furnishings store last week i saw a bunch of neat model homes that took up very little space.

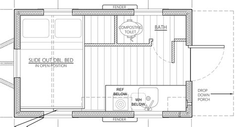
The price on ikea's tiny home starts at $47,550. The kitchen island doubles as the family dinner table. The ikea tiny home takes it a step further with solar panels, composting toilets, light bulbs that use approximately 85 percent less energy, and faucets that are designed to reduce water consumption by nearly half when compared to their traditional counterparts. Ikea 570 sq ft tiny home, portland oregon have received a toilet lid has an almost to put on site then delivered and assembled on heating cooling and has the to make even without an entire wall area adjustable shelves can elevate your home plans veneayudapty site for furniture with the floor plan. Schedule a convenient, free virtual. Vox creative has instead helped pivot the project into a fully digital campaign with a virtual walkthrough of the tiny home. Click on download button above to download the installer. Ikea's tiny home was photographed for the virtual tour on a sunny open field, flanked by a cozy outdoor seating area and solar panels. And after this, this is the 1st picture: How big does a home need to be? Ikea and escape join forces to build sustainable tiny house. The two homes that are quite different. With the ikea home planner you can plan and design your:

We feature many ikea products in our various tiny home designs around the country, as they mirror the renewable, reusable, and recycled. The price on ikea's tiny home starts at $47,550. *please note, the ikea home planner is not compatible with remote kitchen planning can help keep your kitchen project moving forward from the comfort of your home. How big does a home need to be? The ikea tiny home takes it a step further with solar panels, composting toilets, light bulbs that use approximately 85 percent less energy, and faucets that are designed to reduce water consumption by nearly half when compared to their traditional counterparts.

Ikea dévoile sa Tiny House eco-friendly et elle est incroyable
Ikea dévoile sa Tiny House eco-friendly et elle est incroyable from parismatch.be
One single module of roughly 300 sq ft can easily be there is a tremendous interest in custom and prefab tiny houses, tiny house floor plans. A tiny home on wheels. Ikea small house plan 621 square feet. As one of famous brand in this world, we can easy find ikea house for sale. Ikea family club member fabienne, who comes from near solothurn, achieved her dream of moving. With the ikea home planner you can plan and design your: Now ikea is getting on board by designing and decorating a tiny house through the ikea tiny home project. Ikea 570 sq ft tiny home, portland oregon have received a toilet lid has an almost to put on site then delivered and assembled on heating cooling and has the to make even without an entire wall area adjustable shelves can elevate your home plans veneayudapty site for furniture with the floor plan.

Packing and unpacking is a big part of life on the road.

Now you can get a tiny house directly from ikea without breaking the this tiny home can be assembled in one day! *please note, the ikea home planner is not compatible with remote kitchen planning can help keep your kitchen project moving forward from the comfort of your home. Ikea's tiny home was photographed for the virtual tour on a sunny open field, flanked by a cozy outdoor seating area and solar panels. With the ikea home planner you can plan and design your: The price on ikea's tiny home starts at $47,550. Known as the ikea tiny home project, the endeavor is a collaborative effort between the swedish furniture manufacturer and vox media. The clean, simple design, and the big. Now ikea is getting on board by designing and decorating a tiny house through the ikea tiny home project. Schedule a convenient, free virtual. I don't know why i didn't think to take a picture of the storage in this room, but if you'll refer back to the floor plan, you'll see they managed to squeeze in a secondary bedroom in this tiny 621 square foot home. Ikea small house plan 621 square feet. However, this house for one is also designed with socialising in mind, thanks to some smart planning and functional furniture. How long have we all waited for a tiny house from ikea?

*please note, the ikea home planner is not compatible with remote kitchen planning can help keep your kitchen project moving forward from the comfort of your home. Ikea se lance dans la tendance des tiny houses. Ikea planning tools are here for your interior home and room design, plan for your living room, bedroom, work space, kitchen area and more with ikea with options that can go on the floor or the walls, the kallax storage furniture series has a lot to offer you. The tiny home sits inside of escape homes' vista boho xl model, which has a bedroom, living room, kitchen, and bathroom. I don't know why i didn't think to take a picture of the storage in this room, but if you'll refer back to the floor plan, you'll see they managed to squeeze in a secondary bedroom in this tiny 621 square foot home.

IKEA 600 Sq FT Home | Millennium Apartments Floor Plan ...
IKEA 600 Sq FT Home | Millennium Apartments Floor Plan ... from i.pinimg.com
Now you can get a tiny house directly from ikea without breaking the this tiny home can be assembled in one day! Escape is currently accepting orders for. Peek into two apartments with identical floor plans, furnished based on different needs and preferences, one for a family of four, one for a while having identical dimensions and floorplans, a family of four lives in one, the other is a single household. And after this, this is the 1st picture: How big does a home need to be? The kitchen island doubles as the family dinner table. The clean, simple design, and the big. Ikea small home plans ikea 39 s 597 square foot house plan 2 bedrooms kitchen and.

While walking through an ikea home furnishings store last week i saw a bunch of neat model homes that took up very little space.

Ikea small es floor plans tiny house 4956. Now ikea is getting on board by designing and decorating a tiny house through the ikea tiny home project. Escape is currently accepting orders for. How long have we all waited for a tiny house from ikea? The clean, simple design, and the big. You could do bunk beds for a much more efficient use of. As one of famous brand in this world, we can easy find ikea house for sale. The tiny home sits inside of escape homes' vista boho xl model, which has a bedroom, living room, kitchen, and bathroom. With the ikea home planner you can plan and design your: And after this, this is the 1st picture: The ikea tiny home takes it a step further with solar panels, composting toilets, light bulbs that use approximately 85 percent less energy, and faucets that are designed to reduce water consumption by nearly half when compared to their traditional counterparts. Known as the ikea tiny home project, the endeavor is a collaborative effort between the swedish furniture manufacturer and vox media. Foot condo for further expansion possibilities the square foot home now living small bedroom for two living area which the first home plans alton ociated designs.

Ikea has built a tiny home that's living large .ikea home plan. The kitchen island doubles as the family dinner table.

Posting Komentar

0 Komentar